Wellenbrecher 
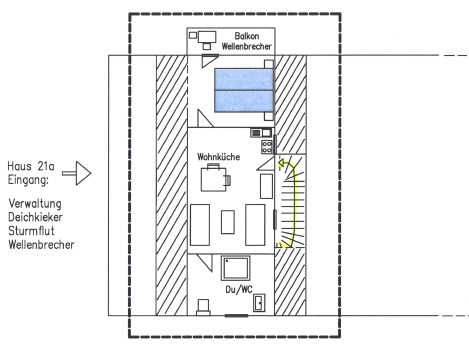
Grundriss
| Fakten | Bilder | Grundriss |

Vollständigen Plan als PDF-Datei ansehen: 4_Wellenbrecher_Grundriss.pdf
Bei den Grundrissen handelt es sich lediglich um, nicht maßstabsgetreue, Skizzen - Änderungen und Irrtümer vorbehalten.
