Sturmflut
Grundriss
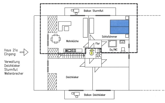
| Fakten | Bilder | Grundriss |

Vollständigen Plan als PDF-Datei ansehen: 3_Sturmflut_Grundriss.pdf
Bei den Grundrissen handelt es sich lediglich um, nicht maßstabsgetreue, Skizzen - Änderungen und Irrtümer vorbehalten.
Sturmflut
| Fakten | Bilder | Grundriss |

Bei den Grundrissen handelt es sich lediglich um, nicht maßstabsgetreue, Skizzen - Änderungen und Irrtümer vorbehalten.